Ramen

IGLO 5

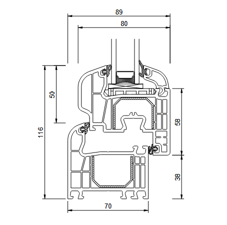
De IGLO 5 is een betrouwbaar 5-kamersysteem met zeer goede thermische isolatieprestaties. Het profiel klasse A is vervaardigd uit uitsluitend primair materiaal, wat de hoogste kwaliteit en duurzaamheid garandeert. Dankzij de uitstekende eigenschappen functioneren deze ramen optimaal in zowel een warm als koud klimaat. Montage van ventilatie en een vensterbank is mogelijk. Montage van een plissémuskietennet is mogelijk.

Kenmerken & voordelen

  • Warmtedoorgangscoëfficiënt: Uw = 0,89 W/(m²K)
  • Geluidsdemping: 36–44 dB
  • 5-kamerprofiel, klasse A
  • Inbouwdiepte: 70 mm
  • 2 EPDM-afdichtingen (buiten en binnen), kleur zwart
  • Standaard beglazing: dubbelglas (1-kamer) met argon, Ug = 1,1 W/(m²K)
  • Afstandshouder: verzinkte stalen of warme Swisspacer Ultimate
  • Beslag: MACO MULTI-MATIC KS met 2 inbraakwerende sluitpunten, Silber-Look coating
  • Vleugellichter / vergrendeling bij onjuiste hendelpositie: ja (afhankelijk van raamhoogte)
  • Microventilatie: ja (draai-kiepramen)
  • Standaard greep: aluminium
  • Scharnierkapjes: 4 kleuren (wit, zilver, lichtbruin, bruin)
  • Afdichting onderste okucigroef: ja
  • Versterking: 1,5 mm stalen U-profiel in kozijn en vleugel (2 mm bij balkondeur)
  • Profielkern: wit
  • Dorpellijst: 5-kamer PVC met afdichting
  • Meer dan 30 PVC-foliekleurenopties + basisprofielkleuren: wit en bruin
Vraag een offerte aan →

Kleurstelling, beglazing & roosters

Kleurstelling PVC ramen

Wit FX

White Sand U-Matt

Crown Platinum

Crème

Pyriet

Gebleekte eik

Natuurlijke eik

Lichtgrijs

Beglazing

Float 4 / Float 6

33.1 Veiligheidsglas

33.2 Mat folie

44.4 Inbraakwerend

Antisol bruin 4/6

Antisol Dark Blue 6

Antisol grijs 6

Antisol groen 4/6

Gezandstraald glas

De mogelijkheid om gezandstraald glas toe te passen maakt het mogelijk willekeurige grafische patronen te realiseren die door de klant worden opgegeven — matte patronen op helder glas of heldere patronen op mat glas. Dit wordt mogelijk gemaakt door technologie die gebruikmaakt van een stroom zand onder hoge druk.

Voorbeeld 1

Voorbeeld 2

Voorbeeld 3

Voorbeeld 4

Voorbeeld 5

Voorbeeld 6

Voorbeeld 7

Voorbeeld 8

Raamroosters

Opgeplakt raamrooster

Ingebouwd raamrooster

Weens raamrooster

Veelgestelde vragen over Ramen

Hoeveel kost een kunststof kozijn laten plaatsen?

De prijs van een kunststof kozijn hangt af van het model, de afmetingen en het type glas. Vraag vrijblijvend een offerte aan via ons contactformulier — wij brengen altijd een maatwerkkostenraming uit.

Is dit kozijn geschikt voor ISDE-subsidie?

Ja, Drutex kozijnen voldoen aan de ISDE-voorwaarden voor subsidie op isolatieglas. Bij plaatsing van triple glas ontvangt u tot €111 per m², of tot €222 per m² bij combinatie met een tweede isolatiemaatregel.

Hoe lang is de levertijd?

De gemiddelde levertijd voor Drutex kozijnen bedraagt 4 tot 8 weken na opdrachtbevestiging. De exacte levertijd bespreken wij bij de offerte.

In welke kleuren is dit kozijn leverbaar?

Drutex kozijnen zijn leverbaar in meer dan 30 kleuren en houtdecoren. Populaire keuzes zijn wit, antraciet (RAL 7016), crème en diverse houtlooks.

Monteren jullie ook door heel Nederland?

Ja, CraftGrid verzorgt levering en professionele montage door heel Nederland. Neem contact op voor een gratis plaatsingsofferte.

Interesse?

Wilt u meer weten over de IGLO 5?

Vul het contactformulier in en wij nemen binnen één werkdag contact met u op. Geen verplichtingen — wél een eerlijk advies op maat.